27793 Wildeshausen, Deutschland
zu vermieten
Auf Anfrage








Gewerbefläche am Gewerbegebiet „Westring“, direkt am Kreisel und an der Einfallstraße neben dem Hagebaumarkt: Die bis vor Kurzem noch als Zaun- und Torgroßhandel betriebene und eingefriedete Liegenschaft ist 14.994 m² groß. Der Bebauungsplan lässt dort eine Bebauung wie folgt zu: Geschossflächenzahl: 2,0; Grundflächenzahl: 0,8; Geschossigkeit: III
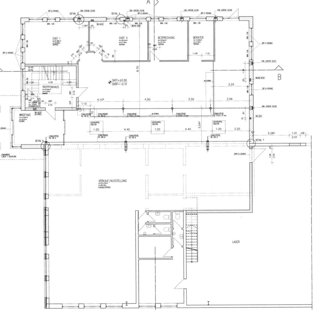
Derzeit sind im architektonisch gelungenen und ursprünglich für den Betrieb eines Baustoffhandels errichteten Hauptgebäude im Erdgeschoss insgesamt 741 m² Nutzfläche vorhanden.
Hiervon ist zur rechten Seite ein Bereich mit knapp 420 m² für ein Großraumbüro sowie Einzelbüros und einem Besprechungsraum vorhanden. Das Zentrum des Gebäudes stellt der große, über eck laufende ehemalige Tresen- und Beratungsbereich mit angrenzenden weiteren Büros dar. 2 Herren-WC, Damen-WC, Abstellraum, Sozialraum und Ausstellungshalle runden die Fläche ab. Vermieterseits werden noch 2 Klimasplitgeräte für ein angenehmes Klima verbaut
Angrenzend zum südlichen Bereich befindet sich ein Werkstattbereich mit angrenzender Lagerhalle auf einer Fläche von ca. 321 m.²
Im Obergeschoss sind auf 147 m² zwei WCs, Küche, Buchhaltung, Seminar-/Besprechungsraum (56 m²), Flur, EDV-Raum, Treppe und Heizungsraum untergebracht.
Die Gesamtnettonutzfläche beträgt 864,84 m².
Neben dem Verwaltungs-, Ausstellungs- und Bürohaus ist noch eine 1.176 m² große Lagerhalle mit den Außenmaßen 24 x 49 m und einem vorgezogenem Schleppdach vorhanden. Vor Kurzem wurde eine zweite, separate Halle mit Schleppdach auf einer Größe von 520 m² errichtet. Die Halle sind tlws. mit Schwerlastregalen ausgestattet. Außenkrakarmständer sind ebenfalls vorhanden.
Das Grundstück ist neben der „Hauptzufahrt“ über die Visbeker Straße auch über die Benzstraße zu erreichen. Beide Zufahrten sind mit einem Tor gegen unbefugten Zutritt geschützt. Das Gelände ist durch einen anthrazitfarbenen Doppelstabgitterzaun gesichert.
Wildeshausen (Landkreis Oldenburg) mit fast 20.000 Einwohnern besitzt seit 1270 das „Bremer Stadtrecht“ und ist damit die älteste Stadt im Oldenburger Land.
Als Haupterholungs- und Luftkurort liegt die Stadt Wildeshausen im Mittelpunkt des Naturparks „Wildeshauser Geest“ und ist seit 1988 Kreisstadt.
Stadt- und Landgemeinde sind kulturhistorisch geprägt und verfügen über moderne, innovative und ansprechende Infrastruktur. Die BAB 1 garantiert eine optimale Verkehrsanbindung an die angrenzenden Oberzentren sowie an die Flughäfen Bremen, Hannover- Langenhagen oder Osnabrück- Münster. Die Nordwest- Bahn sorgt für eine schnelle und direkte Anbindung an das ICE-Netz der Deutschen Bahn AG. Die Stadt Oldenburg ist mit dem Weser- Ems Schnellbus bis in die Abendstunden erreichbar. Aber auch für Erkundungen per Rad oder zu Fuß stehen unzählig ausgebaute Wander- und Radwege mit Verbindung in die angrenzenden Nachbargemeinden zur Verfügung. Im Sommer lädt die Hunte zu einer Flusswanderung oder Bootstour ein- mit etwas Glück, lässt sich hier auch der Eisvogel beobachten. Im „Behördenviertel“ finden Sie alle wichtigen Servicestellen wie Amtsgericht, Katasteramt und Kreisverwaltung. Darüber hinaus verfügt das Mittelzentrum Wildeshausen über ein hervorragend ausgebautes Bildungssystem- von allgemeinbildenden Schulen oder der Privatschule „Gut Spascher Sand“ bis hin zum Fachgymnasium „Wirtschaft/Soziales“ oder der „Heilerziehungspflegeschule“. Die Volkshochschule bietet ein breites Spektrum an Fortbildungsmöglichkeiten am Wochenende oder nach Feierabend. Selbstverständlich werden alle wesentlichen Einrichtungen der Daseinsvorsorge oder Freizeitgestaltung, wie z.B. das Kurbad am Krandel, die Parkanlage am Burgberg mit Konzertmuschel und Kneipp-Anlage oder die historische Wallanlage, die gleichzeitig den Inneren Stadtkern umgrenzt, vorgehalten. Lassen Sie es sich darüber hinaus nicht entgehen, am historischen Gildefest in der Pfingstwoche teilzunehmen.
Wir weisen darauf hin, dass die in unserem Exposé bereitgestellten Informationen und Angaben mit größter Sorgfalt und nach bestem Wissen und Gewissen zusammengestellt wurden. Dennoch können wir für die Richtigkeit, Vollständigkeit und Aktualität dieser Angaben keine Gewähr übernehmen.
Die Informationen im Exposé basieren auf den uns vom Eigentümer oder Dritten zur Verfügung gestellten Daten. Trotz sorgfältiger Prüfung aller uns zugänglichen Informationen können wir nicht ausschließen, dass sich Fehler einschleichen oder Angaben nachträglich ändern.
Charmante Doppelhaushälfte mit Einfamilienhaus Charakter und Wohnmobilcarport
Owning a home is a keystone of wealth… both financial affluence and emotional security.
Suze Orman